This well-presented home offers a comfortable and low-maintenance lifestyle in a convenient location close to schools, shops, and transport.
Features include:
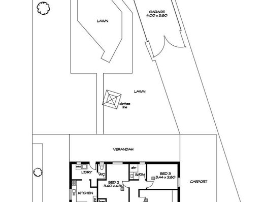
•Three spacious bedrooms, all with built-in robes
•Light-filled living and dining room with heater, air conditioner, and ceiling fan
•Functional kitchen with gas cooktop and ample bench and cupboard space
•Bathroom with separate bath and shower, plus separate toilet
•Separate laundry with built-in cupboard
•Paved pergola area — perfect for outdoor entertaining
•Garden shed and additional storage area
•Single carport for secure off-street parking
How to apply:
Go to www.tenantoptions.com.au
Click Sign Up and proceed to create a profile with your email address
You will be sent a confirmation email to log in. Please check your Spam/Junk folder if you have not received the email.
You will be required to submit a reference request for your professional, employment and residential references via Tenant Options. Tip: Gather the reference emails and contact numbers of your references before you start.
You will be required to upload 100 points of identification via Tenant Options. Tip: Gather and scan your documents before you start. Note: Clear copies must be uploaded to be processed.
Once you have completed your profile you will be able to apply for a property by clicking Apply for a Property button on the Application page. Note: You do not need to wait until your referees respond before applying for a property.
When searching for a property, start typing the address and it will appear from a list. Click on the property you wish to apply for and follow the prompts. Note: You will receive an email when your application has been submitted.
If you have any issues with the online application please check the FAQ link at the bottom of the Tenant Options website or use the Tenant Options “Contact Us” options.
Disclaimer: All efforts have been made to ensure the accuracy of this listing. Prospective tenants are advised to conduct their own checks to confirm details that are important to them.
Show More







Do you own a home?
Prepare for profit. Download our top tips on how to get the highest and best price when selling.